Anejo D. Acción del viento

D.1 Presión dinámica

  1. El valor básico de la presión dinámica del viento puede obtenerse con la expresión:

    qb=0,5δvb2q_b = 0,5 \cdot \delta \cdot v_b^2 (D.1)

    siendo δ\delta la densidad del aire y vbv_b el valor básico de la velocidad del viento.
  2. El valor básico de la velocidad del viento corresponde al valor característico de la velocidad media del viento a lo largo de un período de 10 minutos, tomada en una zona plana y desprotegida frente al viento (grado de aspereza del entorno II según tabla D.2) a una altura de 10 m sobre el suelo. El valor característico de la velocidad del viento mencionada queda definido como aquel valor cuya probabilidad anual de ser sobrepasado es de 0,02 (periodo de retorno de 50 años).
  3. La densidad del aire depende, entre otros factores, de la altitud, de la temperatura ambiental y de la fracción de agua en suspensión. En general puede adoptarse el valor de 1,25 kg/m3. En emplazamientos muy cercanos al mar, en donde sea muy probable la acción de rocío, la densidad puede ser mayor.
  4. El valor básico de la velocidad del viento en cada localidad puede obtenerse del mapa de la figura D.1. El de la presión dinámica es, respectivamente de 0,42 kN/m2, 0,45 kN/m2 y 0,52 kN/m2 para las zonas A, B y C de dicho mapa.
Mapa de valores básicos de la velocidad del viento
Figura D.1 Valor básico de la velocidad del viento, vb
  1. Para comprobaciones de estados límite de servicio, la velocidad básica indicada en párrafos anteriores puede modificarse con el coeficiente de la tabla D.1 según el periodo de retorno considerado, tomando para esa variable un tiempo igual al periodo de servicio con el que se proyecta el edificio.
Tabla D.1 Corrección de la velocidad básica en función del periodo de servicio
Periodo de retorno (años) 1 2 5 10 20 50 200
Coeficiente corrector 0,41 0,78 0,85 0,90 0,95 1,00 1,08

Recursos relacionados

D.2 Coeficiente de exposición

  1. El coeficiente de exposición cec_e para alturas sobre el terreno, z, no mayores de 200 m, puede determinarse con la expresión:

    ce=F(F+7k)c_e = F \cdot (F + 7 \cdot k) (D.2)

    F=kln(max(z,Z)/L)F = k \cdot \ln(\max(z, Z) / L) (D.3)

    siendo k, L, Z parámetros característicos de cada tipo de entorno, según la tabla D.2
Tabla D.2 Coeficientes para tipo de entorno
Grado de aspereza del entorno Parámetro
k L (m) Z (m)
I Borde del mar o de un lago, con una superficie de agua en la dirección del viento de al menos 5 km de longitud 0,156 0,003 1,0
II Terreno rural llano sin obstáculos ni arbolado de importancia 0,17 0,01 1,0
III Zona rural accidentada o llana con algunos obstáculos aislados, como árboles o construcciones pequeñas 0,19 0,05 2,0
IV Zona urbana en general, industrial o forestal 0,22 0,3 5,0
V Centro de negocios de grandes ciudades, con profusión de edificios en altura 0,24 1,0 10,0

D.3 Coeficientes de presión exterior

  1. Los coeficientes de presión exterior o eólico, cpc_p, dependen de la dirección relativa del viento, de la forma del edificio, de la posición de elemento considerado y de su área de influencia.
  2. En las tablas D.3 a D.13 se dan valores de coeficientes de presión para diversas formas simples de construcciones, obtenidos como el pésimo de entre los del abanico de direcciones de viento definidas en cada caso. En todas ellas la variable A se refiere al área de influencia del elemento o punto considerado. El signo “ indica que el valor es idéntico al de la casilla superior. Cuando se aportan dos valores de distinto signo separados, significa que la acción de viento en la zona considerada puede variar de presión a succión, y que deben considerarse las dos posibilidades. En todas las tablas puede interpolarse linealmente para valores intermedios de las variables. Los valores nulos se ofrecen para poder interpolar.
  3. Para comprobaciones locales de elementos de fachada o cubierta, el área de influencia será la del propio elemento. Para comprobaciones de elementos estructurales subyacentes, el área de asignación de carga. Si la zona tributaria del elemento se desarrolla en dos o más zonas de las establecidas en las tablas, como es el caso de análisis de elementos estructurales generales, el uso de los coeficientes tabulados opera del lado de la seguridad, toda vez que no representan valores simultáneos de la acción de viento.
  4. Para elementos con área de influencia A, entre 1 m2 y 10 m2, el coeficiente de presión exterior se puede obtener mediante la siguiente expresión:

    cpe,A=cpe,1+(cpe,10cpe,1)log10Ac_{pe,A} = c_{pe,1} + (c_{pe,10} - c_{pe,1}) \cdot \log_{10} A (D.4)

    siendo:
    • cpe,10c_{pe,10} coeficiente de presión exterior para elementos con un área de influencia A10 m2A \ge 10 \text{ m}^2
    • cpe,1c_{pe,1} coeficiente de presión exterior para elementos con un área de influencia A1 m2A \le 1 \text{ m}^2
  5. En caso de construcciones con forma diferente de las aquí establecidas, deberá procederse por analogía, considerando, si es preciso, que el volumen está formado por la construcción considerada y las medianeras.
  6. Se permite el empleo de las tablas de coeficientes de presión de la norma EN 1991-1-4, tanto para las formas canónicas no incluidas en este Documento Básico como para los coeficientes globales de fuerza de las que sí están incluidas.
Tabla D.3 Paramentos verticales
Esquema de paramentos verticales
A (m2) h/d Zona (según figura), -45º < θ < 45º
A B C D E
≥ 10 5 -1,2 -0,8 -0,5 0,8 -0,7
1 -0,5
≤ 0,25 0,7 -0,3
5 5 -1,3 -0,9 -0,5 0,9 -0,7
1 -0,5
≤ 0,25 0,8 -0,3
2 5 -1,3 -1,0 -0,5 0,9 -0,7
1 -0,5
≤ 0,25 0,7 -0,3
≤ 1 5 -1,4 -1,1 -0,5 1,0 -0,7
1 -0,5
≤ 0,25 -0,3
Tabla D.4 Cubiertas planas
Esquema de cubiertas planas
hp/h A (m2) Zona (según figura), -45º < θ < 45º
F G H I
Bordes con aristas ≥ 10 -1,8 -1,2 -0,7 0,2 / -0,2
≤ 1 -2,5 -2,0 -1,2 0,2 / -0,2
Con parapetos 0,025 ≥ 10 -1,6 -1,1 -0,7 0,2 / -0,2
≤ 1 -2,2 -1,8 -1,2 0,2 / -0,2
0,05 ≥ 10 -1,4 -0,9 -0,7 0,2 / -0,2
≤ 1 -2,0 -1,6 -1,2 0,2 / -0,2
0,10 ≥ 10 -1,2 -0,8 -0,7 0,2 / -0,2
≤ 1 -1,8 -1,4 -1,2 0,2 / -0,2
Nota: Se considerarán cubiertas planas aquellas con una pendiente no superior a 5º
Tabla D.5 Cubiertas a un agua.
a) Dirección del viento -45º ≤ θ ≤ 45º
Cubiertas a un agua, dirección 0
Pendiente de la cubierta α A (m2) Zona (según figura), -45º < θ < 45º
F G H
≥ 10 -1,7 / +0,0 -1,2 / +0,0 -0,6 / +0,0
≤ 1 -2,5 / +0,0 -2,0 / +0,0 -1,2 / +0,0
15º ≥ 10 -0,9 / 0,2 -0,8 / 0,2 -0,3 / 0,2
≤ 1 -2,0 / 0,2 -1,5 / 0,2 -0,3 / 0,2
30º ≥ 10 -0,5 / 0,7 -0,5 / 0,7 -0,2 / 0,4
≤ 1 -1,5 / 0,7 -1,5 / 0,7 -0,2 / 0,4
45º ≥ 10 -0,0 / 0,7 -0,0 / 0,7 -0,0 / 0,6
≤ 1 -0,0 / 0,7 -0,0 / 0,7 -0,0 / 0,6
60º ≥ 10 0,7 0,7 0,7
≤ 1 0,7 0,7 0,7
75º ≥ 10 0,8 0,8 0,8
≤ 1 0,8 0,8 0,8
b) Dirección del viento 135º ≤ θ ≤ 225º
Cubiertas a un agua, dirección 180
Pendiente de la cubierta α A (m2) Zona (según figura), 135º ≤ θ ≤ 225º
F G H
≥ 10 -2,3 -1,3 -0,8
≤ 1 -2,5 -2,0 -1,2
15º ≥ 10 -2,5 -1,3 -0,9
≤ 1 -2,8 -2,0 -1,2
30º ≥ 10 -1,1 -0,8 -0,8
≤ 1 -2,3 -1,5 -0,8
45º ≥ 10 -0,6 -0,5 -0,7
≤ 1 -1,3 -0,5 -0,7
60º ≥ 10 -0,5 -0,5 -0,5
≤ 1 -1,0 -0,5 -0,5
75º ≥ 10 -0,5 -0,5 -0,5
≤ 1 -1,0 -0,5 -0,5
c) Dirección del viento 45º ≤ θ ≤ 135º
Cubiertas a un agua, dirección 90
Pendiente de la cubierta α A (m2) Zona (según figura), 45º ≤ θ ≤ 135º
Finf Fsup G H I
≥ 10 -2,1 -2,1 -1,8 -0,6 -0,5
≤ 1 -2,4 -2,6 -2,0 -1,2 -0,5
15º ≥ 10 -1,6 -2,4 -1,9 -0,8 -0,7
≤ 1 -2,4 2,9 -2,5 -1,2 -1,2
30º ≥ 10 -1,3 -2,1 -1,5 -1,0 -0,8
≤ 1 -2,0 -2,9 -2,0 -1,3 -1,2
45º ≥ 10 -1,3 -1,5 -1,4 -1,0 -0,9
≤ 1 -2,0 -2,4 -2,0 -1,3 -1,2
60º ≥ 10 -1,2 -1,2 -1,2 -1,0 -0,7
≤ 1 -2,0 -2,0 -2,0 -1,3 -1,2
75º ≥ 10 -1,2 -1,2 -1,2 -1,0 -0,5
≤ 1 -2,0 -2,0 -2,0 -1,3 -0,5
Tabla D.6 Cubiertas a dos aguas
a) Dirección del viento -45º ≤ θ ≤ 45º
Cubiertas a dos aguas, dirección 0
Pendiente de la cubierta α A (m2) Zona (según figura)
F G H I J
-45º ≥ 10 -0,6 -0,6 -0,8 -0,7 -1
≤ 1 -0,6 -0,6 -0,8 -0,7 -1,5
-30º ≥ 10 -1,1 -0,8 -0,8 -0,6 -0,8
≤ 1 -2 -1,5 -0,8 -0,6 -1,4
-15º ≥ 10 -2,5 -1,3 -0,9 -0,5 -0,7
≤ 1 -2,8 -2 -1,2 -0,5 -1,2
-5º ≥ 10 -2,3 -1,2 -0,8 0,2 / -0,6 0,2 / -0,6
≤ 1 -2,5 -2 -1,2 0,2 / -0,6 0,2 / -0,6
≥ 10 -1,7 / +0,0 -1,2 / +0,0 -0,6 / +0,0 -0,6 0,2 / -0,6
≤ 1 -2,5 / +0,0 -2 / +0,0 -1,2 / +0,0 -0,6 0,2 / -0,6
15º ≥ 10 -0,9 / 0,2 -0,8 / 0,2 -0,3 / 0,2 -0,4 / +0,0 -1 / +0,0
≤ 1 -2 / 0,2 -1,5 / 0,2 -0,3 / 0,2 -0,4 / +0,0 -1,5 / +0,0
30º ≥ 10 -0,5 / 0,7 -0,5 / 0,7 -0,2 / 0,4 -0,4 / 0 -0,5 / 0
≤ 1 -1,5 / 0,7 -1,5 / 0,7 -0,2 / 0,4 -0,4 / 0 -0,5 / 0
45º ≥ 10 -0,0 / 0,7 -0,0 / 0,7 -0,0 / 0,6 -0,2 / +0,0 -0,3 / +0,0
≤ 1 -0,0 / 0,7 -0,0 / 0,7 0,6 -0,2 / +0,0 -0,3 / +0,0
60º ≥ 10 0,7 0,7 0,7 -0,2 -0,3
≤ 1 0,7 0,7 0,7 -0,2 -0,3
75º ≥ 10 0,8 0,8 0,8 -0,2 -0,3
≤ 1 0,8 0,8 0,8 -0,2 -0,3
b) Dirección del viento 45º ≤ θ ≤ 135º
Cubiertas a dos aguas, dirección 90
Pendiente de la cubierta α A (m2) Zona (según figura), -45º ≤ θ ≤ 45º
F G H I
-45º ≥ 10 -1,4 -1,2 -1,0 -0,9
≤ 1 -2,0 -2,0 -1,3 -1,2
-30º ≥ 10 -1,5 -1,2 -1,0 -0,8
≤ 1 -2,1 -2,0 -1,3 -1,2
-15º ≥ 10 -1,9 -1,2 -0,8 -0,8
≤ 1 -2,5 -2,0 -1,3 -1,2
-5º ≥ 10 -1,8 -1,2 -0,7 -0,6
≤ 1 -2,5 -2,0 -1,2 -1,2
≥ 10 -1,6 -1,3 -0,7 -0,6
≤ 1 -2,2 -2,0 -1,2 -0,6
15º ≥ 10 -1,3 -1,3 -0,6 -0,5
≤ 1 -2,0 -2,0 -1,2 -0,5
30º ≥ 10 -1,1 -1,4 -0,8 -0,5
≤ 1 -1,5 -2,0 -1,2 -0,5
45º ≥ 10 -1,1 -1,4 -0,9 -0,5
≤ 1 -1,5 -2,0 -1,2 -0,5
60º ≥ 10 -1,1 -1,2 -0,8 -0,5
≤ 1 -1,5 -2,0 -1,0 -0,5
75º ≥ 10 -1,1 -1,2 -0,8 -0,5
≤ 1 -1,5 -2,0 -1,0 -0,5
Nota:
  • No se deben mezclar valores positivos y negativos en una sola cara.
Tabla D.7 Cubiertas a cuatro aguas
Cubiertas a cuatro aguas
Pendiente de la cubierta α A (m2) Zona (según figura)
F G H I J K L M N
≥ 10 -1,7 / +0,0 -1,2 / +0,0 -0,6 / +0,0 -0,3 -0,6 -0,6 -1,2 -0,6 -0,4
≤ 1 -2,5 / +0,0 -2,0 / +0,0 -1,2 / +0,0 -0,3 -0,6 -0,6 -2,0 -1,2 -0,4
15º ≥ 10 -0,9 / +0,2 -0,8 / +0,2 -0,3 / +0,2 -0,5 -1,0 -1,2 -1,4 -0,6 -0,3
≤ 1 -2,0 / +0,2 -1,5 / +0,2 -0,3 / +0,2 -0,5 -1,5 -2,0 -2,0 -1,2 -0,3
30º ≥ 10 -0,5 / +0,5 -0,5 / +0,7 -0,2 / +0,4 -0,4 -0,7 -0,5 -1,4 -0,8 -0,2
≤ 1 -1,5 / +0,5 -1,5 / +0,7 -0,2 / +0,4 -0,4 -1,2 -0,5 -2,0 -1,2 -0,2
45º ≥ 10 -0,0 / +0,7 -0,0 / +0,7 -0,0 / +0,6 -0,3 -0,6 -0,3 -1,3 -0,8 -0,2
≤ 1 -0,0 / +0,7 -0,0 / +0,7 -0,0 / +0,6 -0,3 -0,6 -0,3 -2,0 -1,2 -0,2
60º ≥ 10 +0,7 +0,7 +0,7 -0,3 -0,6 -0,3 -1,2 -0,4 -0,2
≤ 1 +0,7 +0,7 +0,7 -0,3 -0,6 -0,3 -2,0 -0,4 -0,2
75º ≥ 10 +0,8 +0,8 +0,8 -0,3 -0,6 -0,3 -1,2 -0,4 -0,2
≤ 1 +0,8 +0,8 +0,8 -0,3 -0,6 -0,3 -2,0 -0,4 -0,2
Nota:
  • La pendiente de la cubierta a barlovento resulta dominante para los coeficientes de presión.
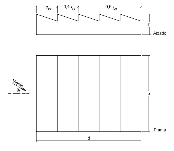
Tabla D.8 Cubiertas en diente de sierra
a) Dirección del viento -45º ≤ θ ≤ 45º
Cubiertas en diente de sierra, dirección 0
b) Dirección del viento -45º ≤ θ ≤ 45º (Situación 1 y 2)
Cubiertas en diente de sierra, alzado
Notas:
  • Los coeficientes de presión para cada faldón se podrán tomar de la tabla relativa a cubierta a un agua, modificándolos de acuerdo con las indicaciones de las figuras a) y b) anteriores.
  • En el caso de la figura b) se deberán considerar dos situaciones. En la primera el viento ejerce una presión sobre la cubierta del primer faldón a barlovento, y en la segunda la misma cubierta está sometida a una succión del viento.
Tabla D.9 Cubiertas múltiples
Dirección del viento -45º ≤ θ ≤ 45º
Cubiertas múltiples
Notas:
  • Los coeficientes de presión para cada par de faldones se podrán tomar de la tabla relativa a cubiertas a dos aguas, modificándolos de acuerdo con las indicaciones de las figuras a) y b) anteriores.
  • En el caso de la figura a) los coeficientes de presión cpec_{pe} correspondientes a los módulos extremos se podrán tomar de la tabla relativa a cubiertas a un agua.
Tabla D.10 Marquesinas a un agua
Marquesinas a un agua
Coeficientes de presión exterior
cp,10
Pendiente de la cubierta α Efecto del viento hacia Factor de obstrucción φ Zona (según figura)
A B C
Abajo 0 ≤ φ ≤ 1 0,5 1,8 1,1
Arriba 0 -0,6 -1,3 -1,4
Arriba 1 -1,5 -1,8 -2,2
Abajo 0 ≤ φ ≤ 1 0,8 2,1 1,3
Arriba 0 -1,1 -1,7 -1,8
Arriba 1 -1,6 -2,2 -2,5
10º Abajo 0 ≤ φ ≤ 1 1,2 2,4 1,6
Arriba 0 -1,5 -2,0 -2,1
Arriba 1 -2,1 -2,6 -2,7
15º Abajo 0 ≤ φ ≤ 1 1,4 2,7 1,8
Arriba 0 -1,8 -2,4 -2,5
Arriba 1 -1,6 -2,9 -3,0
20º Abajo 0 ≤ φ ≤ 1 1,7 2,9 2,1
Arriba 0 -2,2 -2,8 -2,9
Arriba 1 -1,6 -2,9 -3,0
25º Abajo 0 ≤ φ ≤ 1 2,0 3,1 2,3
Arriba 0 -2,6 -3,2 -3,2
Arriba 1 -1,5 -2,5 -2,8
30º Abajo 0 ≤ φ ≤ 1 2,2 3,2 2,4
Arriba 0 -3,0 -3,8 -3,6
Arriba 1 -1,5 -2,2 -2,7
Notas:
  • El grado de obstrucción del flujo del viento por debajo de una marquesina se caracteriza mediante el factor de obstrucción, φ, definido como la relación entre el área obstruida y el área de la sección total bajo la marquesina. Ambas áreas se consideran en un plano perpendicular a la dirección del viento.
  • Los coeficientes de presión tienen en cuenta los efectos del viento actuando sobre ambas superficies, la superior y la inferior. Un valor negativo del coeficiente indica que la acción del viento tiende a levantar la marquesina, y un valor positivo lo contrario. Por regla general, a efectos del dimensionado de las marquesinas se deberán considerar ambas situaciones.
  • Los coeficientes de presión representan la máxima presión localizada sobre un área de por lo menos 10 m2. Los coeficientes de presión se podrán emplear en el dimensionado de los elementos de cobertura y de sus fijaciones.
  • A efectos del dimensionado de la estructura, la resultante de la acción del viento se supondrá actuando a una distancia de d/4, medida desde el borde de barlovento.
  • A sotavento del punto de máximo bloqueo, se emplearán los valores de los coeficientes de presión exterior correspondientes a un factor de obstrucción φ=0.
Tabla D.11 Marquesinas a dos aguas
Marquesinas a dos aguas
Coeficientes de presión
cp,10
Pendiente de la cubierta α Efecto del viento hacia Factor de obstrucción φ Zona (según figura)
A B C D
-20º Abajo 0 ≤ φ ≤ 1 0,8 1,6 0,6 1,7
Arriba 0 -0,9 -1,3 -1,6 -0,6
Arriba 1 -1,5 -2,4 -2,4 -0,6
-15º Abajo 0 ≤ φ ≤ 1 0,6 1,5 0,7 1,4
Arriba 0 -0,8 -1,3 -1,5 -0,6
Arriba 1 -1,6 -2,7 -2,6 -0,6
-10º Abajo 0 ≤ φ ≤ 1 0,6 1,4 0,8 1,1
Arriba 0 -0,8 -1,3 -1,5 -0,6
Arriba 1 -1,6 -2,7 -2,6 -0,6
-5º Abajo 0 ≤ φ ≤ 1 0,5 1,5 0,8 0,8
Arriba 0 -0,7 -1,3 -1,6 -0,6
Arriba 1 -1,5 -2,4 -2,4 -0,6
Abajo 0 ≤ φ ≤ 1 0,6 1,8 1,3 0,4
Arriba 0 -0,6 -1,4 -1,4 -1,1
Arriba 1 -1,3 -2,0 -1,8 -1,5
10º Abajo 0 ≤ φ ≤ 1 0,7 1,8 1,4 0,4
Arriba 0 -0,7 -1,5 -1,4 -1,4
Arriba 1 -1,3 -2,0 -1,8 -1,8
15º Abajo 0 ≤ φ ≤ 1 0,9 1,9 1,4 0,4
Arriba 0 -0,9 -1,7 -1,4 -1,8
Arriba 1 -1,3 -2,2 -1,6 -2,1
20º Abajo 0 ≤ φ ≤ 1 1,1 1,9 1,5 0,4
Arriba 0 -1,2 -1,8 -1,4 -2,0
Arriba 1 -1,4 -2,2 -1,6 -2,1
25º Abajo 0 ≤ φ ≤ 1 1,2 1,9 1,6 0,5
Arriba 0 -1,4 -1,9 -1,4 -2,0
Arriba 1 -1,4 -2,0 -1,5 -2,0
30º Abajo 0 ≤ φ ≤ 1 1,3 1,9 1,6 0,7
Arriba 0 -1,4 -1,9 -1,4 -2,0
Arriba 1 -1,4 -1,8 -1,4 -2,0
Notas:
  • El grado de obstrucción del flujo del viento por debajo de una marquesina se caracteriza mediante el factor de obstrucción, φ, definido como la relación entre el área obstruida y el área de la sección total bajo la marquesina. Ambas áreas se consideran en un plano perpendicular a la dirección del viento.
  • Los coeficientes de presión tienen en cuenta los efectos del viento actuando sobre ambas superficies, la superior y la inferior. Un valor negativo del coeficiente indica que la acción del viento tiende a levantar la marquesina, y un valor positivo lo contrario. Por regla general, a efectos del dimensionado de las marquesinas se deberán considerar ambas situaciones.
  • Los coeficientes de presión, cp,10c_{p,10}, representan la máxima presión localizada sobre un área de por lo menos 10 m2. Los coeficientes de presión, cp,10c_{p,10}, se podrán emplear en el dimensionado de los elementos de cobertura y de sus fijaciones.
  • A efectos del dimensionado de la estructura, la resultante de la acción del viento sobre cada uno de los faldones se admitirá actuando en su centro. Además, se considerará también la situación en la que el viento actúa únicamente sobre uno de los dos faldones.
  • Para factores de obstrucción con 0 < φ < 1, los coeficientes de sustentación y de fuerza se podrán determinar mediante interpolación lineal.
  • A sotavento del punto de máximo obstrucción, se emplearán los valores de los coeficientes de sustentación correspondientes a un factor de obstrucción φ=0.
Tabla D.12 Cubiertas cilíndricas
Esquema cubiertas cilíndricas
Gráfica coeficientes cubierta cilíndrica
Notas:
  • Para 0 < g/d < 0,5, el coeficiente de presión exterior, cpe,10c_{pe,10}, correspondiente a la superficie A, se obtendrá mediante interpolación lineal.
  • Para 0,2 ≤ f/d ≤ 0,3 y g/d ≥ 0,5, se adoptará el más desfavorable de los dos posibles valores del coeficiente de presión exterior, cpe,10c_{pe,10}, correspondiente a la zona A.
Tabla D.13 Cubiertas esféricas
Esquema cubiertas esféricas
Planta cubiertas esféricas
Gráfica coeficientes cubiertas esféricas
Notas:
  • cpe,10c_{pe,10} es constante a lo largo de cada uno de los arcos del círculo de intersección entre la esfera y los planos perpendiculares a la dirección del viento.
  • Los valores de cpe,10c_{pe,10} a lo largo de los arcos de circunferencia paralelos a la dirección del viento se podrán determinar mediante interpolación lineal ente los valores en A, B, C.
  • Para 0 < g/d < 1 el coeficiente de presión exterior en A se obtendrá mediante interpolación lineal entre los valores indicados en la figura.
  • Para 0 < g/d < 0,5, los coeficientes de presión exterior en B y C se obtendrán mediante interpolación lineal entre los valores indicados en la figura.